

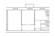
Продается трехкомнатная квартира с евроремонтом, г. Реутов. Дом теплый, кирпичный, с хорошей шумоизоляцией, 2008 года постройки. Квартира просторная 81, 5 кв. м., с изолированными комнатами ( 11,7-22,4,-13,8 ). Большая квадратная кухня 12,3 кв.м. Санузел раздельный. Застекленная лоджия. Квартира очень светлая, солнечная. Из окон красивый вид на город. Квартира полностью готова к проживанию. Очень хороший ремонт, выполнен из дорогих стройматериалов.
Отлично развита инфраструктура района. В трех минутах от дома расположен детский садик, чуть дальше школа. Сетевые магазины Перекресток, Пятерочка, Дикси, Магнит - находятся в соседних домах. Кофейни, пиццерия, Ozon и Wildberries, фитнес-клуб Территория Фитнеса, так же рядом. За домом располагается Центральный парк и Казанская церковь. Центральный парк города Реутов занял пятое место в рейтинге лучших парковых зон Подмосковья. На территории парка много детских площадок, игровых зон, аттракционов, в том числе автогородок и самая большая песочница Реутова. Для подростков и взрослых открыты зоны для воркаута, настольного тенниса, волейбола и футбола. В восточной части парка расположен концертный амфитеатр, в западной — экстремальный скейт-парк, а рядом с ним — кафе и пекарня.
Хорошая транспортная доступность. До МЦД 4 Реутов десять минут пешком, до метро Новокосино так же десять минут. Удобный выезд на Носовихинское шоссе и МКАД.
Один взрослый собственник. Квартира без обременений и перепланировок. В собственности более пяти лет. Полная стоимость в договоре. Подходит под ипотеку. Поможем в одобрении ипотеки (сотрудничаем со многими банками). Реальным клиентамазумный торг. Звоните.
18500000 руб. | 280269 $ | 245613 €